Location 20.400€ Euros HTHC / an - ENTREPOT
ENTREPOT DE 205m2 EN LOCATION
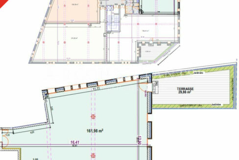
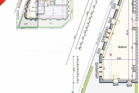
Local d’activité neuf sur la commune d’Arbin, d’une surface totale de 205 m² comprenant 157 m² au sol et 48 m² en mezzanine – loué brut, fluide en attente-aménagements à prévoir-site bitumé et clos par un portail motorisé grande ouverture-accès PL-dalle béton charge lourde d’une épaisseur de 25 cm-hauteur sous faîtage de 6,45 m-environ 30 places de stationnements extérieurs pour l’ensemble des lots.
Surfaces proposées
Surface totale de 205m² – Divisible à partir de 0m2
Honoraires
3060€ HT HC soit 15% HT HC à la charge du preneur
Détails
- :
Prestations
- Accès gros porteur
- Accès plain-pied
- Aire de manoeuvre
- Charge au sol : dalle de 25 cm d'épaisseu
- Contrôle d'accès
- Eclairage extérieur
- Façade bardage double peau
- Fluides en attente
- Installation électrique existante
- Mezzanine
- Nbre Parkings extérieurs privatifs : environ 30
- Portail d'entrée motorisé
- Portail sur horloge
- Porte sectionnelle motorisée
- Site clos et sécurisé
- Skydome
- Télésurveillance
- Terrain bitumé


