Vente 427.565€ Euros HT - BUREAUX
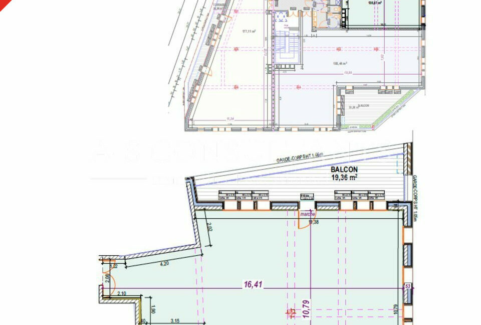
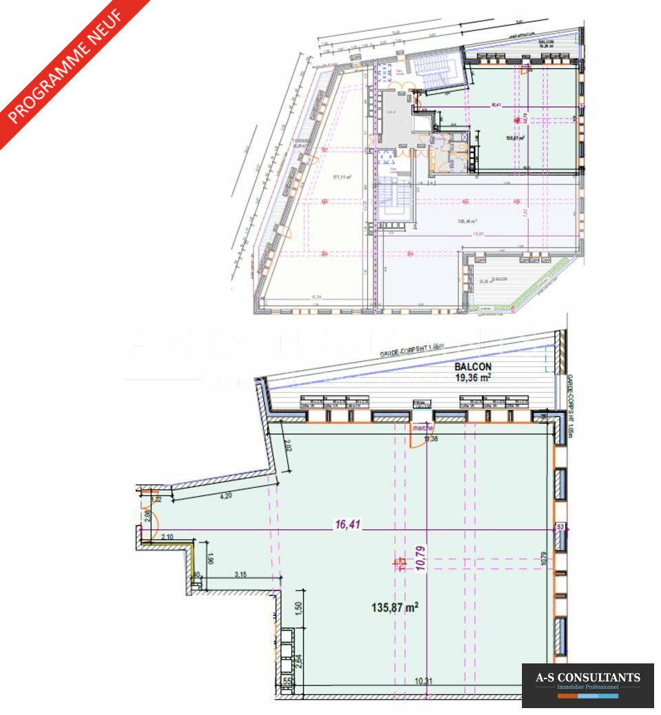
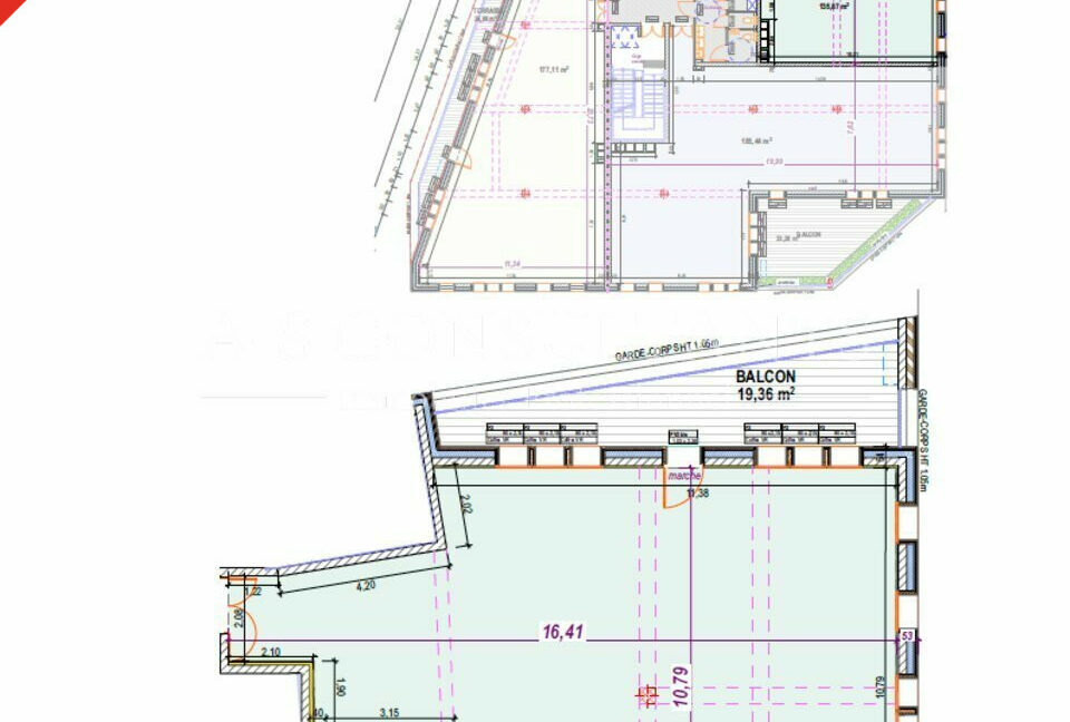
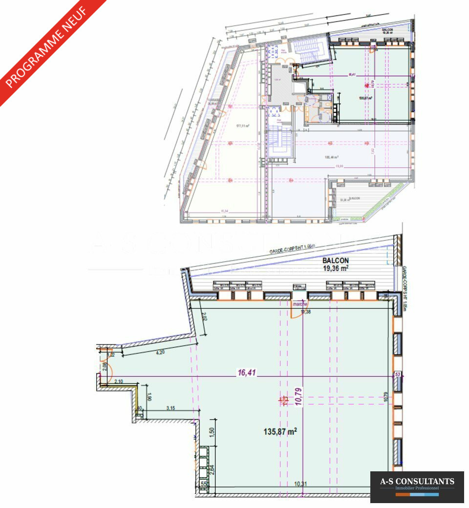
BUREAUX DE 136m2 EN VENTE
A VENDRE – LA RAVOIRE (73490) – dans une résidence privée et sécurisée, de 18 lots de locaux professionnels – Le lot n°12 d’une surface de 136 m² environ – livré brut, à aménager suivant la profession – Idéal assurances, professions libérales, professions médicales – nombreux stationnements privatifs disponibles – accès PMR – ascenseur – climatisation – matériaux de qualité – standing – plans de chaque surface sur demande – réunion possible de plusieurs lots sur un même niveau ou de lots sur plusieurs étages – Très belles prestations – visibilité prémium – à voir absolument – Livraison 2026.
Surfaces proposées
Surface totale de 136m²
| Batiment – Lot | Etage | Type | Surface | Prix vente | Prix vente m2 | Parkings | Disponibilité |
Honoraires
2% HT à la charge de l’acheteur
Détails
- :
Prestations
- Accès Handicapés
- Ascenseur
- Brut de béton
- Brut de décoffrage
- Bureaux partiellement cloisonnés
- Climatisation réversible
- Contrôle d'accès
- Eclairage extérieur
- Etablissement recevant du public
- Fibre optique
- Fluides en attente
- Immeuble indépendant
- Interphone
- Murs isolés
- Nbre Parkings extérieurs privatifs : 41
- Open Space
- Parking Extérieur
- Parking Visiteur
- Précâblage
- RT 2012
- Site clos
- Téléphone câblé
- Terrain bitumé
- Terrain clos
- Toiture isolée
- Ventilation double flux


